Eagle River Hudson
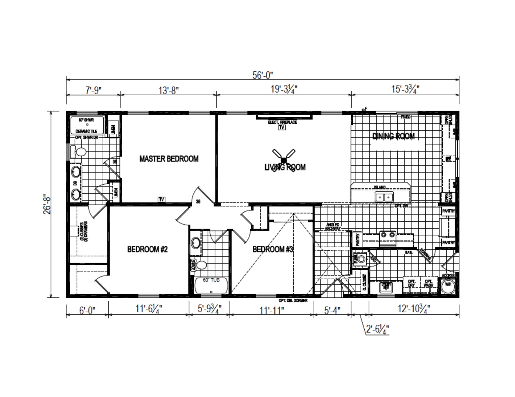
Model #: HD-60J1262 | Dimensions: 28x56
3 bed(s)
2 bath(s)
1,494 sqft
Description:
Style: Sectional Homes
Manufacturer: Eagle River Homes
Location: Brockway, PA
On Display?: Yes


























